Objektbeschreibung
In zentraler Lage von Egestorf befindet sich dieses modernisierte und äußerst gepflegte Mehrfamilienhaus mit drei separaten Wohneinheiten auf einem ca. 664 m² großen Grundstück. Das Gebäude wurde im Jahr 1950 in Massivbauweise errichtet und Anfang der 2000er umfassend renoviert und energetisch modernisiert, inklusive Dämmung der Außenfassade. Zusätzlich wurde die Wohnung im Obergeschoss 2023 renoviert und in Obergeschoss- und Erdgeschosswohnung jeweils ein Ofen installiert, womit behagliche Feierabende gewährleistet sind. Die Gesamtwohnfläche beträgt ca. 263 m², verteilt auf zwei Wohnungen im Erdgeschoss sowie eine großzügige Einheit im Obergeschoss. Das Haus verfügt über zwei Vollgeschosse und ist voll unterkellert.
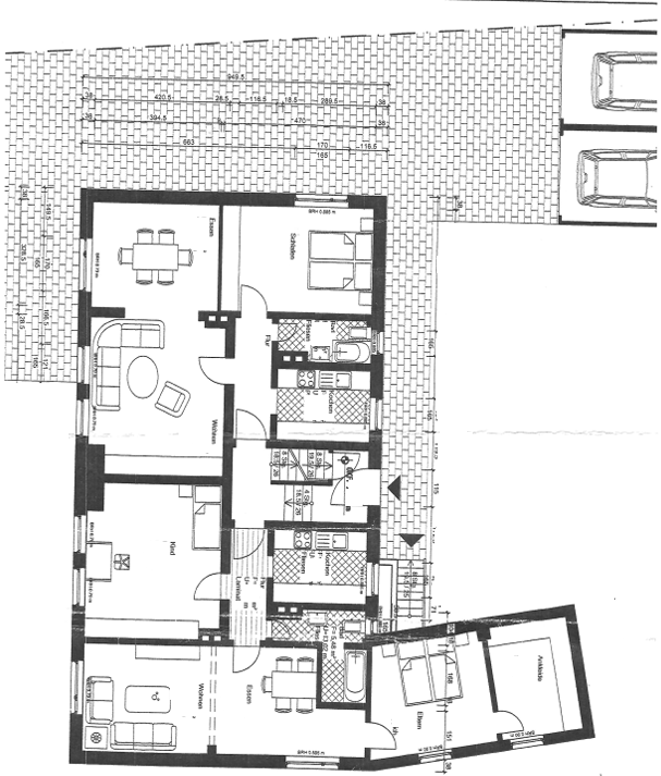
Die rechte 2 Zimmer - Erdgeschosswohnung umfasst ca. 63m² Wohnfläche und besteht aus drei gut geschnittenen Zimmern: einem großzügigen Wohnbereich, einem Schlafzimmer mit angrenzendem Ankleidezimmer, einem Esszimmer, einer Küche mit Einbauküche sowie einem Badezimmer mit Fenster. Die linke Erdgeschosswohnung bietet ca. 84 m² Wohnfläche, auf vier Zimmer verteilt – bestehend aus einem Wohnzimmer, einem Schlafzimmer samt Ankleidezimmer, einem Esszimmer, einer separaten Küche mit Einbauküche sowie einem Badezimmer mit Tageslicht. Beide Einheiten im Erdgeschoss verfügen über klassische, funktionale Grundrisse mit hellen, freundlichen Räumen.
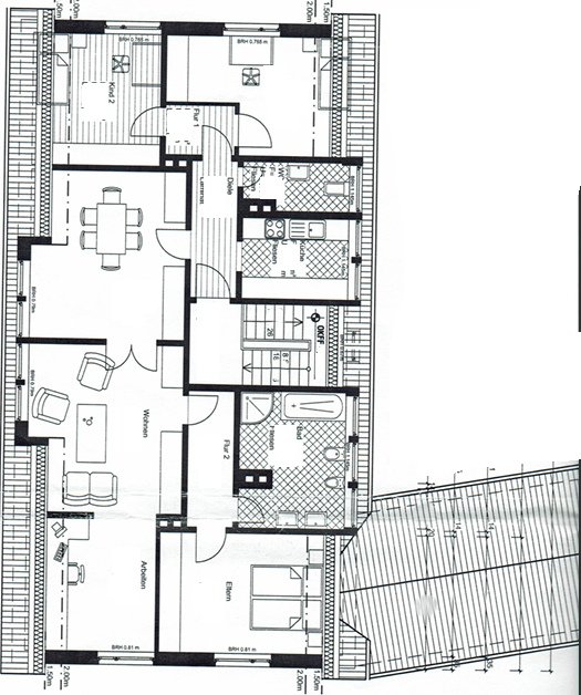
Das Obergeschoss beherbergt eine großzügige 6 Zimmer - Wohnung mit einer Fläche von ca. 115 m², die sich ideal für Familien oder eine Mehrzimmernutzung eignet. Sie besteht aus sechs Zimmern: einem weitläufigen Wohnzimmer, einem Esszimmer, zwei Kinderzimmern, einem Arbeitszimmer, einem Schlafzimmer, einer Küche mit Einbauküche, einem Gäste-WC und einem großen Tageslichtbad mit Badewanne.
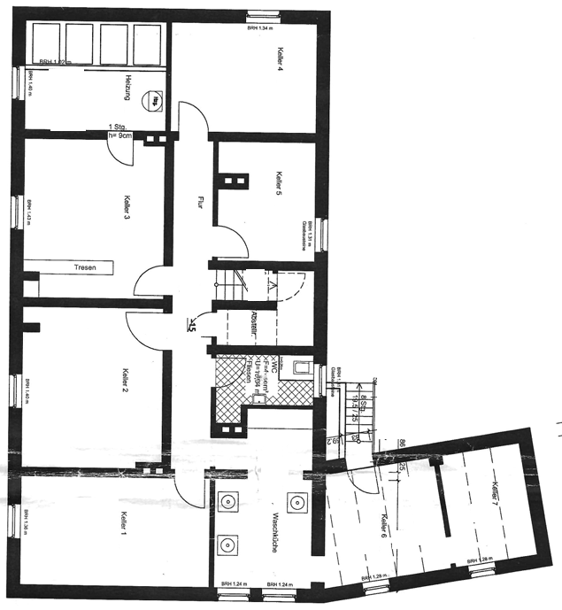
Das Haus ist vollständig unterkellert und bietet weit mehr als nur klassische Abstellflächen. Ein eigener Waschbereich mit Waschbecken sowie ein großzügiger Party- oder Hobbyraum eröffnen vielfältige Nutzungsmöglichkeiten. Der Heizungsraum ist mit einer Viessmann-Ölheizung ausgestattet, die ca. 2009 modernisiert wurde.Darüber hinaus stehen im Keller eine separate Toilette, ein Herdanschluss sowie ein zusätzlicher Wasseranschluss mit Waschbecken zur Verfügung – ideal für handwerkliche Arbeiten oder die Nutzung als Hauswirtschaftsraum.
Die Abrechnung der Strom-, Wasser- und Heizkosten erfolgt verbrauchsabhängig und getrennt je Wohneinheit nach Wohnfläche.
Die Ausstattung des Hauses überzeugt durch zahlreiche wertige Details. Alle drei Wohnungen sind mit modernen Einbauküchen ausgestattet. In den Küchen und Bädern wurden pflegeleichte Fliesen verlegt, die Wohnräume sind mit Laminat ausgestattet. Zwei neue Kamine sorgen in den jeweiligen Einheiten für eine behagliche Atmosphäre. Eine massive Echtholztreppe führt ins Obergeschoss. Die Elektrik wurde 1989/1991 erneuert. Darüber hinaus ist ein Kabelanschluss mit bis zu 100 Mbit/s vorhanden.
Der Außenbereich bietet eine Vielzahl an Nutzungsmöglichkeiten. Im hinteren Grundstücksteil befindet sich ein gepflegter Garten mit altem Baumbestand. Für die Gartenbewässerung steht ein eigener Brunnen zur Verfügung. Direkt angrenzend an das Haus liegt eine Terrasse – ideal für entspannte Stunden im Freien. Auf dem Grundstück befinden sich zudem zwei Garagen sowie drei zusätzliche Außenstellplätze. Der vorhandene Spitzboden bietet zusätzlichen Stauraum.
Insgesamt bietet dieses Haus eine seltene Kombination aus solider Bausubstanz, durchdachter Grundrissgestaltung, moderner Ausstattung, flexibler Nutzungsmöglichkeiten und einer hervorragenden Lage. Ob zur Eigennutzung als Mehrgenerationenhaus, zur teilweisen Vermietung oder als renditestarke Kapitalanlage – hier eröffnen sich zahlreiche Optionen für Eigentümer mit Weitblick.
Lage
Makro Lage:
Barsinghausen – zwischen Deister und der Landeshauptstadt Hannover. Die Stadt im Calenberger Land am nordwestlichen Rand des Deisters besticht durch ihre naturnahe Lage und die direkte Anbindung an den Wirtschaftsraum Hannover. Eingebettet in eine sanfte Hügellandschaft mit weiten Feldern, Wäldern und idyllischen Wanderwegen, vereint Barsinghausen ländlichen Charme mit urbaner Nähe.
Die Region ist bekannt für ihr starkes Naherholungsangebot. Der nahegelegene Deister, ein bis zu 405 Meter hoher Höhenzug, gilt als „grüne Lunge“ der Region und bietet zahlreiche Möglichkeiten zum Wandern, Mountainbiken oder Spazieren. Beliebte Ziele wie das Besucherbergwerk Klosterstollen oder der Höhenzug mit dem Nordmannsturm und dem Annaturm laden Einheimische wie Auswärtige zu Ausflügen in die Natur ein. Das Deisterbad mit seiner weitläufigen Badelandschaft sorgt für Erholung und Freizeitwert – besonders im Winter.
Hannover, mit seinen wirtschaftlichen, kulturellen und infrastrukturellen Vorteilen, ist nur etwa 25 Kilometer entfernt und mit dem Auto in rund 30 Minuten über die Bundesstraße B65 oder die A2 bequem erreichbar. Die S-Bahn-Linie S1 verbindet Barsinghausen direkt mit Hannover Hauptbahnhof in ca. 35 Minuten – ideal für Berufspendler. Auch der Flughafen Hannover-Langenhagen ist binnen 40 Minuten erreichbar.
Mikro Lage:
Das gepflegte 3-Familienhaus befindet sich in der Wennigser Straße 51 im südöstlichen Teil von Barsinghausen im Ortsteil Egestorf (dem größten Ortsteil von Barsinghausen). Die Straße liegt in einem gewachsenen Wohngebiet mit überwiegend Ein- und kleineren Mehrfamilienhäusern. Die Umgebung ist ruhig, grün und familienfreundlich geprägt – eine angenehme Mischung aus naturnaher Lage und guter Infrastruktur.
Die Wennigser Straße ist eine der Hauptverbindungen in Richtung Wennigsen und somit verkehrstechnisch gut angebunden, dabei aber nicht übermäßig frequentiert. Die Bebauung entlang der Straße ist abwechslungsreich: Neben klassischen Wohnhäusern aus der Nachkriegszeit finden sich auch modernisierte Bestandsbauten und gepflegte Vorgärten, die dem Straßenbild ein ruhiges und freundliches Erscheinungsbild verleihen.
In fußläufiger Entfernung befinden sich zahlreiche Einrichtungen des täglichen Bedarfs: Supermärkte, Bäckereien, Apotheken und Restaurants sind binnen weniger Minuten erreichbar. Auch das Ortszentrum von Barsinghausen mit weiteren Einkaufsmöglichkeiten, Banken, Cafés sowie dem Wochenmarkt ist nur etwa 1,5 Kilometer entfernt. Bildungseinrichtungen wie eine Grundschule, weiterführende Schulen sowie Kindertagesstätten befinden sich ebenfalls in der näheren Umgebung und sind bequem zu Fuß oder mit dem Fahrrad erreichbar.
Besonders hervorzuheben ist der Kindergarten, der sich direkt gegenüber dem Haus befindet – ideal für junge Familien.
Die medizinische Versorgung ist mit Haus- und Fachärzten gesichert. Für sportliche und kulturelle Aktivitäten bietet die Stadt unter anderem ein Hallenbad, Sportvereine, eine Musikschule sowie regelmäßige Veranstaltungen im Kulturzentrum „ASB-Bahnhof“.Die Anbindung an den öffentlichen Nahverkehr ist gut: Die Bushaltestelle liegt in kurzer Gehdistanz und bietet eine direkte Verbindung ins Zentrum sowie zum S-Bahnhof Egestorf. Von dort gelangt man mit der S-Bahnlinie S1 ohne Umstieg in ca. 30 Minuten nach Hannover. Für Autofahrer ist die Bundesstraße B65 schnell erreicht, ebenso wie die Autobahn A2, die eine überregionale Verbindung Richtung Dortmund und Berlin bietet.
Nicht zuletzt punktet die Lage durch ihre Nähe zur Natur: Der Deister mit seinen zahlreichen Wander- und Radwegen beginnt nur wenige Minuten entfernt und lädt zu erholsamen Ausflügen ins Grüne ein. Diese Kombination aus stadtnaher Infrastruktur und unmittelbarer Naturnähe macht die Wennigser Straße 51 zu einer attraktiven Wohnlage für Familien, Berufspendler und Naturliebhaber gleichermaßen.