0385 – 555 72 10
|
info@rosenhof-immobilien.de
|
Standorte

Zurück Vor

Großzügige 2,5-Zimmer Wohnung in der Fußgängerzone Hameln

Kaltmiete:
600,00 €
Wohnfläche ca.:
80 m²
Zimmer:
2.5
Kaltmiete:
600,00 €
Nebenkosten:
250,00 €
Heizkosten:
in Nebenkosten enthalten
Heizkosten:
850,00 €
Kaution:
1.800,00 EUR
Wohnfläche ca.:
80,00 m²
Zimmer:
2.5
Balkone:
1

Objekt-Nummer
JH-WS-V
Kennungsursprung
PROPSTACK
Weitergabe
Sprache
de-DE
status
Vermarktung
area_unit
sqm

PLZ:
31785
Ort:
Hameln
Tageslichtbad
Dusche
Einbauküche
Fernwärme
Keller
Abstellraum

Energiepass

Energieausweis Energieausweis
Energiepass Art:
Verbrauch
gültig bis:
27.01.2031
Energieverbrauchkennwert:
150.0 kWh/(m²a)
mit Warmwasser
Primärenergieträger:
Fernwärme
Energieeffizienzklasse:
E
Ausstelldatum:
28.01.2021
Jahrgang:
2014
Gebäudeart:
wohn

Weitere Angaben

verfügbar ab
01.04.2026
Nichtraucher

Objektbeschreibung

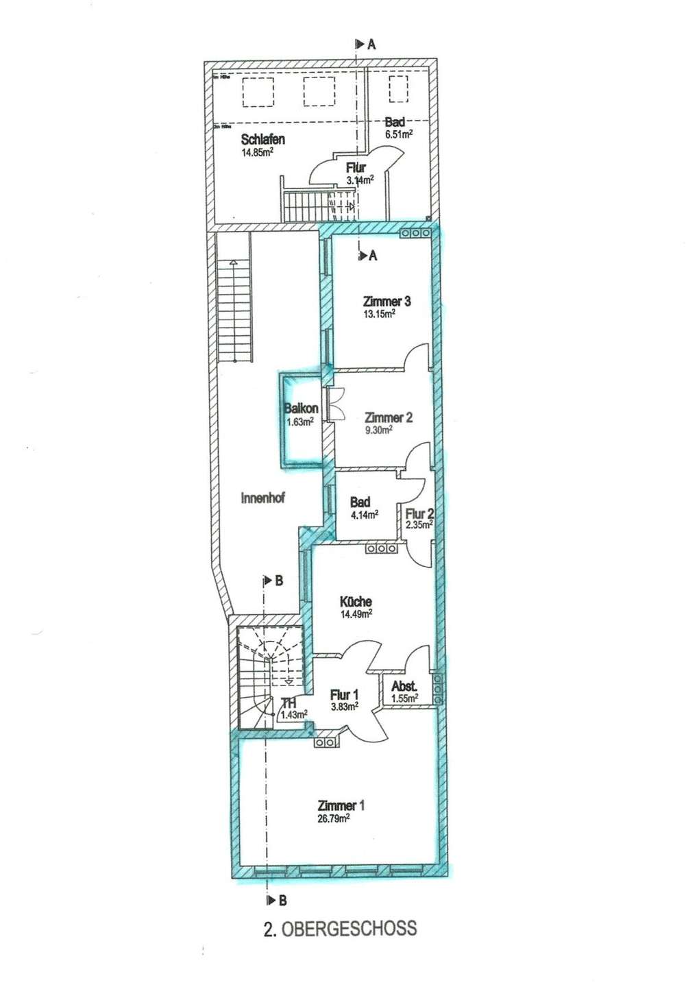
Diese angebotene, gepflegte 2,5-Zimmer-Wohnung befindet sich im 2. Obergeschoss eines Mehrfamilienhauses und besticht durch ihre praktische und funktionale Aufteilung, durch einen zentralen Flur und 2,5 geräumigen Zimmern.

Die Fußgängerzone ist direkt vor der Tür und bietet kulinarische Herrlichkeiten dieser Welt sowie ein ungetrübtes Einkaufsvergnügen.
Ein rundherum schöner Platz zum Wohnen im Herzen der Rattenfängerstadt Hameln.

Lage

Hameln ist eine große selbständige Stadt in Niedersachsen mit ca. 60.000 Einwohnern.
Die Kreisstadt des Landkreises Hameln-Pyrmont liegt an der Weser und ist vor allem bekannt durch die Sage vom Rattenfänger von Hameln, die die Überlieferung auf das Jahr 1284 datiert. Hameln ist das Einkaufszentrum des Weserberglandes. Sein Einzugsbereich reicht weit über die eigene Stadtgrenze hinaus. Hameln hat über 600 Einkaufsmöglichkeiten und seit 2008 eine
Einkaufsgalerie mit 80 Shops. In Hameln laufen die Bundesstraßen 1, 83 und 217 sternförmig zusammen. Im Straßenpersonennahverkehr verfügt die Stadt seit 1996 über ein Stadtbussystem, das vom Nahverkehr Hameln-Pyrmont geleitet wird. Vom Bahnhof Hameln hat man die Möglichkeit mit der S-Bahn nach Hannover, Bad-Pyrmont und teilweise auch nach Paderborn zukommen.
Die Weserbahn bietet Ihnen die Verkehrsanbindung nach Hildesheim, Bad Oeynhausen und Löhne.

Ausstattung

- Küche inkl. Einbauküche

- Badezimmer mit Dusche und Fenster

- Balkon

- Dielenfußboden in der Wohnung

- Fliesen im Badezimmer

- Kellerraum

- Waschmaschinenstellplatz im Keller

sonstige Angaben

Bitte nur per Mail anfragen!

Kontaktformular